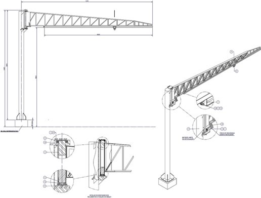
Elaboração de projeto e memorial de cálculo de braço articulado para elevação de carga

Cliente:

Grupo Campari

Data:

Desenvolvimento de projeto e memorial de cálculo para uma solução em elevação de cargas na manutenção da empresa. O projeto incluiu uma análise detalhada das diferentes cargas que seriam aplicadas na estrutura, garantindo a segurança e a integridade da operação. Cada carga foi meticulosamente considerada e os pontos de apoio foram estrategicamente posicionados para oferecer uma solução robusta e eficiente. A estrutura foi projetada para suportar tanto cargas estáticas quanto dinâmicas, garantindo uma solução confiável e segura para as necessidades de elevação de cargas da empresa.

Outros projetos

Elaboração de projeto e memorial de cálculo de mezanino para armazenamento de materiais

O desenvolvimento do projeto e memorial de cálculo de mezanino para armazenamento de materiais exigiu uma análise detalhada das diferentes cargas aplicadas ao longo da estrutura.…

Elaboração de projeto e memorial de cálculo de linha de vida sobre telhado

Desenvolvemos o projeto de linha de vida com pontos de ancoragem instalados sobre a estrutura metálica do telhado, garantindo a segurança durante os acessos de manutenção, conforme…