Elaboração de projeto e memorial de cálculo de linha de vida no perímetro do telhado

Cliente:

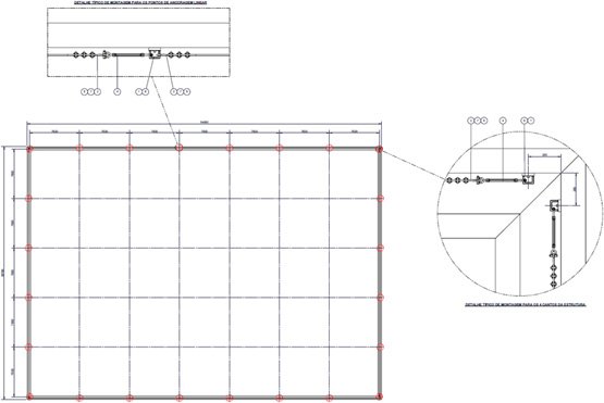
Yamaha Motors do Brasil

Data:

Desenvolvemos o projeto conforme as necessidades do cliente, observando todas as normas aplicáveis e garantindo a segurança dos trabalhadores. Neste caso, a necessidade era a limpeza das calhas do telhado, uma tarefa que exige atenção especial para evitar acidentes. Nossa equipe de engenharia projetou um sistema de linha de vida com restrição, permitindo que os trabalhadores executassem a limpeza com total segurança, minimizando os riscos de queda. Elaboramos o memorial de cálculo detalhado, além de planos de segurança específicos para a operação. O projeto foi implementado com sucesso, garantindo uma operação eficiente e segura.

Outros projetos

Desenvolvimento de projeto e memorial de cálculo de monovia para linha de vida em pórtico móvel, para processo de lonamento de carretas

Para a empresa Latem Recuperação de Metais, desenvolvemos um projeto e um memorial de cálculo de monovia para a linha de vida em pórtico móvel, sendo utilizado estrategicamente…

Elaboração de projeto de linha de vida para telhado zipado

Desenvolvimento de uma solução robusta e eficiente para os pontos de ancoragem das linhas de vida, visando garantir a segurança dos funcionários durante a manutenção de telhados,…