Desenvolvimento de pontos de ancoragem para linhas de vida

Cliente:

Senac SENAC

Data:

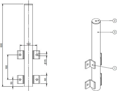
Desenvolvemos pontos de ancoragem para montagem de linhas de vida sobre o telhado, visando garantir a segurança na realização de manutenções e na limpeza das calhas. Este projeto foi essencial para proporcionar um ambiente de trabalho seguro e eficiente, permitindo que as tarefas sejam executadas com a devida proteção contra quedas e outros riscos associados ao trabalho em altura. Esses pontos de ancoragem devem ser projetados de forma a atender aos requisitos de segurança e regulamentações vigentes, como as normas da NR-35 (Trabalho em Altura) e NR-18 (Condições e Meio Ambiente de Trabalho na Indústria da Construção)

Outros projetos

Desenvolvimento de projeto de sistema de ventilação e exaustão

Desenvolvemos uma solução de ventilação e exaustão para controle de temperatura em sala elétrica, de controle de equipamentos de cimenteira, garantindo a temperatura necessária…

Desenvolvimento de projeto e memorial de cálculo de monovia para linha de vida em pórtico móvel, para processo de lonamento de carretas

Para a empresa Latem Recuperação de Metais, desenvolvemos um projeto e um memorial de cálculo de monovia para a linha de vida em pórtico móvel, sendo utilizado estrategicamente…