Desenvolvimento de pontos de ancoragem para linhas de vida em escada marinheiro

Cliente:

Senac SENAC

Data:

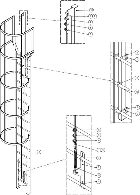
O desenvolvimento de pontos de ancoragem para linha de vida em uma escada marinheiro é essencial para garantir a segurança de quem realiza atividades de acesso a telhados, prevenindo quedas. Esses pontos de ancoragem devem ser projetados de forma a atender aos requisitos de segurança e regulamentações vigentes, como as normas da NR-35 (Trabalho em Altura) e NR-18 (Condições e Meio Ambiente de Trabalho na Indústria da Construção)

Outros projetos

Elaboração de documentação de segurança do trabalho e análise de cargas monovia em braço articulado para elevação de materiais

Cliente com equipamento já instalado, mas sem nenhuma documentação referente ao projeto e análise de cargas. Desenvolvemos o projeto e fizemos a análise das cargas solicitadas…

Desenvolvimento de pontos de ancoragem para linhas de vida

Desenvolvemos pontos de ancoragem para montagem de linhas de vida sobre o telhado, visando garantir a segurança na realização de manutenções e na limpeza das calhas. Este projeto…